-
Guaranteed Fitment
Always the correct part
-
In-House Experts
We know our products
-
Added Value
FREE in house engineering and design assistance
-
Wordwide Delivery
Free shipping on all Harrington orders over 500LBS

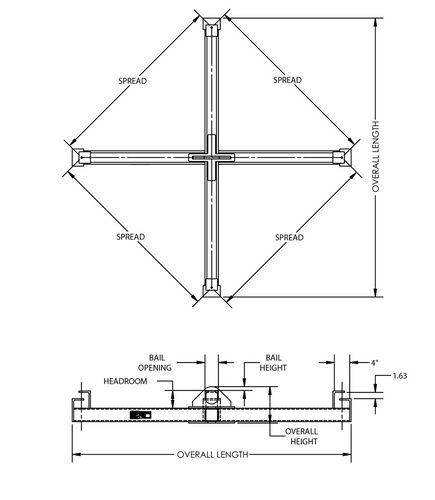
Below The Hook, Capacity 2, Outside Spread 36, Overall Height 9.5, Overall Length 55.75, HFPSL-2-36SK, Harrington
The Harrington HFPSL-2-36SK Below The Hook lifting device represents the pinnacle of industrial lifting innovation, combining exceptional engineering with unparalleled performance. Designed primarily for heavy-duty operations, this device boasts a robust lifting capacity of 2 tons, making it the ideal solution for a variety of demanding industrial applications. Whether transporting heavy machinery or positioning large components, the HFPSL-2-36SK provides the reliability and efficiency you need to optimize your workflow.
Engineered with meticulous attention to detail, this lifting device features a wide outside spread of 36 inches, ensuring secure handling and positioning of various load sizes. The unit's compact dimensions—including an overall height of just 9.5 inches and an overall length of 55.75 inches—make it versatile enough to operate in environments with height restrictions without sacrificing operational efficiency.
- High Capacity: With a 2-ton lifting capacity, the HFPSL-2-36SK accommodates a wide range of lifting tasks, enhancing versatility in industrial settings.
- Wide Outside Spread: The substantial 36-inch spread facilitates secure lifting, allowing operators to handle larger objects with confidence and precision.
- Compact Headroom: Minimal vertical clearance of 4.63 inches offers operational flexibility in confined spaces, ensuring efficiency in height-restricted environments.
- Durable Construction: Built from premium materials for exceptional strength and longevity, the HFPSL-2-36SK withstands frequent use in challenging conditions.
- Ease of Use: Designed for quick setup and efficient operation, this device reduces downtime, enhancing productivity in any manufacturing or construction project.
- Safety Features: The secure 3.5-inch bail opening and robust bail height provide stability during lifting, prioritizing safety for operators.
- Versatile Application: Its dimensions make the HFPSL-2-36SK viable for a wide array of tasks, from manufacturing to warehousing and maintenance applications.
In various industries such as manufacturing, construction, warehousing, and transportation, the HFPSL-2-36SK is designed to promote efficiency and safety. From lifting machinery and components during production processes to facilitating loading and unloading in warehouses, this lifting device excels at meeting the multifaceted demands of modern operations. Furthermore, its straightforward design assists maintenance crews by providing the necessary support for equipment upkeep and repairs.
Invest in the Harrington HFPSL-2-36SK Below The Hook lifting device for a dependable solution that guarantees unmatched performance and exceptional reliability in all of your lifting operations. Trust in its engineering excellence to streamline your processes while prioritizing safety for your workforce.